Quadrilocale in vendita

Bolano, Via Francesco Petrarca - Ceparana-Carpena
€ 105.000
4 locali 4 locali
93 Mq 93 Mq
1 bagno 1 bagno

Quadrilocale in vendita

Bolano, Via Francesco Petrarca - Ceparana-Carpena

Descrizione annuncio

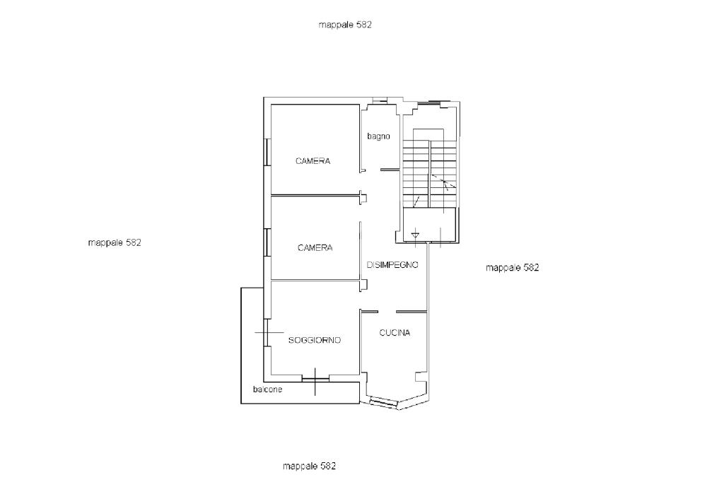
CEPARANA : APPARTAMENTO DI 4 VANI

Proponiamo in vendita un luminoso appartamento di 4 vani, nella zona centrale di Ceparana, in un contesto per chi cerca tranquillità ma senza rinunciare alla comodità dei servizi.

Uno dei punti di forza dell'immobile è la sua posizione; Nella zona più servita del centro di Ceparana, a pochi passi dalla piazza principale, supermercati, bar, farmacie e scuole pubbliche.

L'appartamento è situato al primo piano di una piccola palazzina in buono stato con spese condominiali minime e riscaldamento autonomo.

L'ampio ingresso conduce alla zona giorno con spaziosa cucina abitabile, al soggiorno con balcone angolare ed alla zona notte dove troviamo due grandi camere matrimoniali ed un bagno fiestrato e dotato di box doccia recentemente ristrutturato.

Le condizioni interne sono buone e l'appartamento potrebbe essere da subito abitato. La disposizione degli ambienti e la struttura, permettono eventualmente di modificare comodamente la disposizione degli spazi per creare un ampia zona giorno open space.

Completa la proprietà una funzionale cantina al piano terra dello stabile con accesso esterno.

Disponibile da subito.

Mostra tutto

Nelle vicinanze

Trasporto pubblico Trasporto pubblico
Santo Stefano di Magra
Santo Stefano di Magra
2,7 Km
Trasporto pubblico
300 m
Direzione Sarzana Santo Stefano
Direzione Sarzana Santo Stefano
2,4 Km
Scuole Scuole
Scuole
2,1 Km
Scuola Elementare "Enrico Fermi"
2,5 Km
Farmacia Farmacia
Farmacia Salvan
2,4 Km
Parafarmacia Conad
2,8 Km
Supermercati Supermercati
Conad
2,8 Km
Negozi Negozi
Valerio's Bakery
2,4 Km
Bar Bar
Bar Moderno
2,4 Km
Bar
2,6 Km
Ristoranti Ristoranti
Trattoria pizzeria Il contado
2,1 Km
Il Borgo
2,4 Km
La Tana del Riccio
2,4 Km
Big Baffalo Trattoria
2,5 Km
Mostra tutto

Caratteristiche

Rif.:
61119488
Piano:
1 di 3 (Piano medio)
Balconi:
1
Camere da letto:
2
Arredamento:
Parziale
Condizionamento:
Assente
Mostra tutto
Prezzo Prezzo
€ 105.000
Rata mutuo Rata mutuo
€ 485 / mese
Spese annue Spese annue
€ 45
Proponi il tuo prezzoProponi il tuo prezzo

Classe Energetica

G
G
G
G
G
G
G
G
G
EP globale non rinnovabile:
130.47 kW h/m² anno
EP globale rinnovabile:
113.15 kW h/m² anno
EP invernale del fabbricato:
EP estiva del fabbricato:
Anno di costruzione:
1987
Riscaldamento:
Autonomo
Tipo impianto:
A radiatori
Tipo alimentazione:
Metano

Ti interessa visionare l'immobile?

Fissa un appuntamento  Fissa un appuntamento

Richiedi informazioni

* Questi campi sono obbligatori

Calcola il tuo mutuo

Semplice e senza impegno
Anticipo

( % )
Mutuo

( % )

pochi semplici passi

inserisci i tuoi dati
Questionario completato
Grazie per aver richiesto un appuntamento senza impegno con un nostro Consulente del Credito e Assicurativo.

Hai inserito correttamente tutti i dati necessari e a breve riceverai una e-mail con un link da convalidare per inviare i tuoi dati.
Affiliato
Studio Gpt Srl
Via Romana, 20 19020 Bolano (SP)
Via Romana, 20 19020 Bolano (SP)
Zona: Ceparana - Bolano - Follo
Mostra su mappa
Affiliato
Studio Gpt Srl
Via Romana, 20 19020 Bolano (SP)

2025 Tecnocasa Franchising S.p.A. - P. IVA 08365160152 - Via Monte Bianco 60/A 20089 Rozzano (MI). Ogni agenzia ha un proprio titolare ed è autonoma. Privacy policy | Policy utilizzo | Cookie policy