Multilocale in vendita

Bolano, Via Genova - Ceparana-Carpena
€ 348.000
8 locali 8 locali
170 Mq 170 Mq
2 bagni 2 bagni

Multilocale in vendita

Bolano, Via Genova - Ceparana-Carpena

Descrizione annuncio

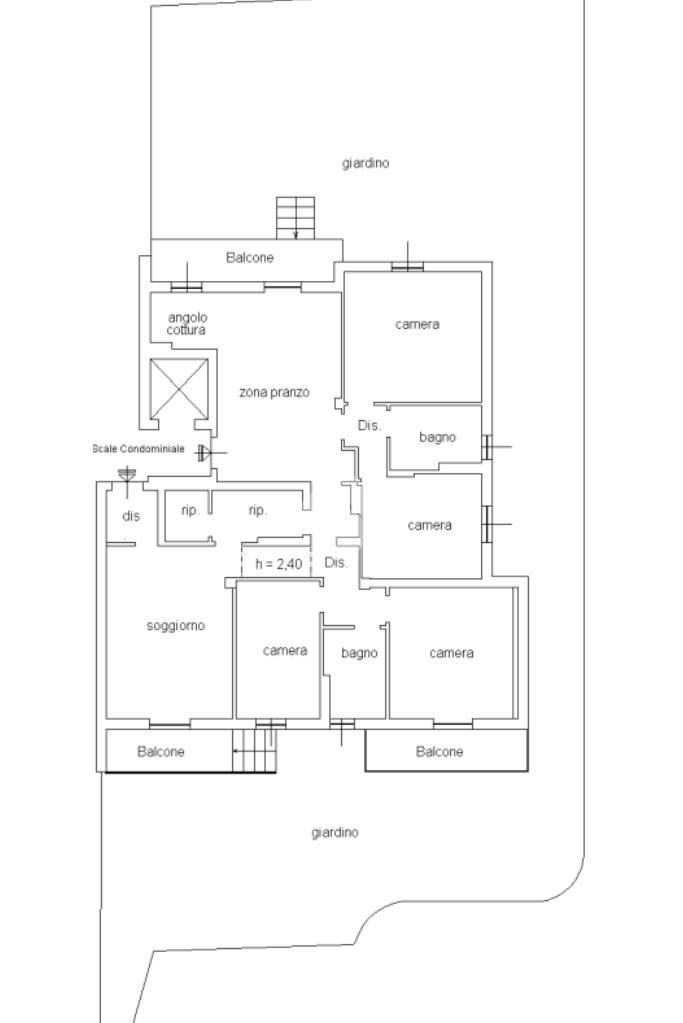
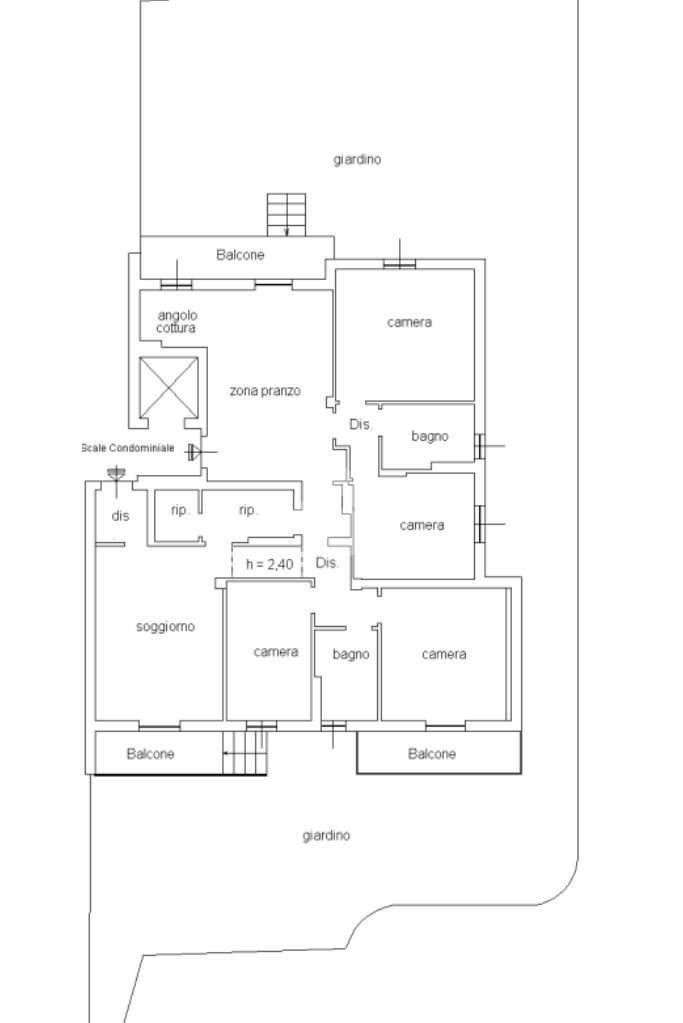
Ceparana - Appartamento a piano rialzato con giardino privato, doppio ingresso, due posti auto coperti e ascensore.

Proponiamo in vendita un ampio appartamento al piano rialzato con giardino privato con due ingressi indipendenti, situato in una zona tranquilla e ben servita.


La casa è formata da due appartamenti uniti in un’unica abitazione, perfetta per chi desidera spazi ampi, due zone separate per la famiglia o un ambiente versatile per vivere e lavorare.

Dal primo ingresso si accede a un soggiorno luminoso con angolo cottura e balcone che porta al giardino. Da qui un disimpegno conduce a una camera matrimoniale, una cameretta e a un bagno finestrato con doccia.


Un secondo disimpegno collega questa parte della casa alla seconda unità, dove troviamo una cucina più piccola, un comodo ripostiglio, una cameretta, una seconda camera matrimoniale, un bagno finestrato con doccia e un ampio soggiorno con secondo ingresso e accesso diretto al giardino.

L’appartamento dispone di riscaldamento autonomo, due posti auto coperti sotto lo stabile e ascensore che collega comodamente il garage ai piani.

Vi è inpoltre un tratto di strada privata/condominiale con accesso auto per entrare direttamente sull'area del giardino privato.

Le spese condominiali sono contenute, rendendo questa soluzione pratica e conveniente.

Mostra tutto

Nelle vicinanze

Trasporto pubblico Trasporto pubblico
Trasporto pubblico
590 m
Scuole Scuole
Scuole
1,7 Km
Mostra tutto

Caratteristiche

Rif.:
61134327
Piano:
1 di 3 con ascensore (Piano rialzato)
Posti auto:
2
Balconi:
3
Camere da letto:
4
Arredamento:
Parziale
Mostra tutto
Prezzo Prezzo
€ 348.000
Rata mutuo Rata mutuo
€ 1.640 / mese
Spese annue Spese annue
€ 1.100
Proponi il tuo prezzoProponi il tuo prezzo

Classe Energetica

F
F
F
F
F
F
F
F
F
EP globale non rinnovabile:
177.82 kW h/m² anno
EP globale rinnovabile:
156.56 kW h/m² anno
EP invernale del fabbricato:
EP estiva del fabbricato:
Anno di costruzione:
2006
Riscaldamento:
Autonomo
Tipo impianto:
A radiatori
Tipo alimentazione:
Metano

Ti interessa visionare l'immobile?

Fissa un appuntamento  Fissa un appuntamento

Richiedi informazioni

Clicca su Leggi per aprire l'informativa
* Questi campi sono obbligatori

Calcola il tuo mutuo

Semplice e senza impegno
Anticipo

( % )
Mutuo

( % )

pochi semplici passi

inserisci i tuoi dati
Questionario completato
Grazie per aver richiesto un appuntamento senza impegno con un nostro Consulente del Credito e Assicurativo.

Hai inserito correttamente tutti i dati necessari e a breve riceverai una e-mail con un link da convalidare per inviare i tuoi dati.
Affiliato
Studio Gpt Srl
Via Romana, 20 19020 Bolano (SP)
Via Romana, 20 19020 Bolano (SP)
Zona: Ceparana - Bolano - Follo
Mostra su mappa
Affiliato
Studio Gpt Srl
Via Romana, 20 19020 Bolano (SP)

2026 Tecnocasa Franchising S.p.A. - P. IVA 08365160152 - Via Monte Bianco 60/A 20089 Rozzano (MI). Ogni agenzia ha un proprio titolare ed è autonoma. Privacy policy | Policy utilizzo | Cookie policy