Rustico in vendita

Bolano, Località Carbonara
€ 90.000
10 locali 10 locali
300 Mq 300 Mq
1 bagno 1 bagno

Rustico in vendita

Bolano, Località Carbonara

Descrizione annuncio

Bolano - Località carbonara

In posizione collinare immersa nel verde, proponiamo complesso immobiliare con ampio terreno di circa 5.000mq.

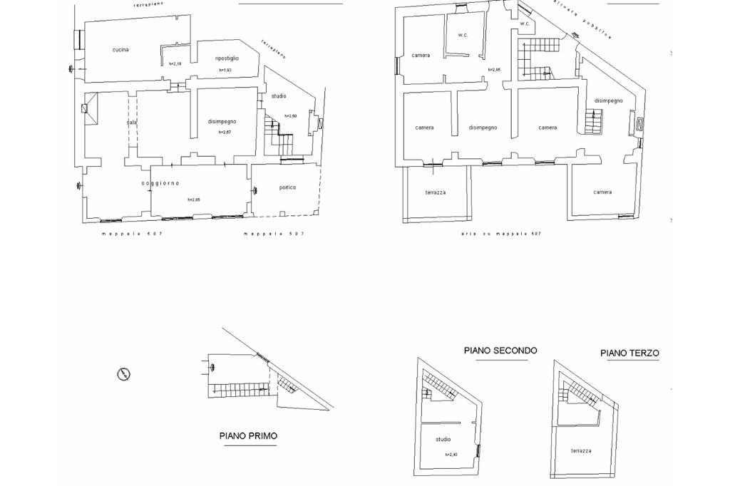
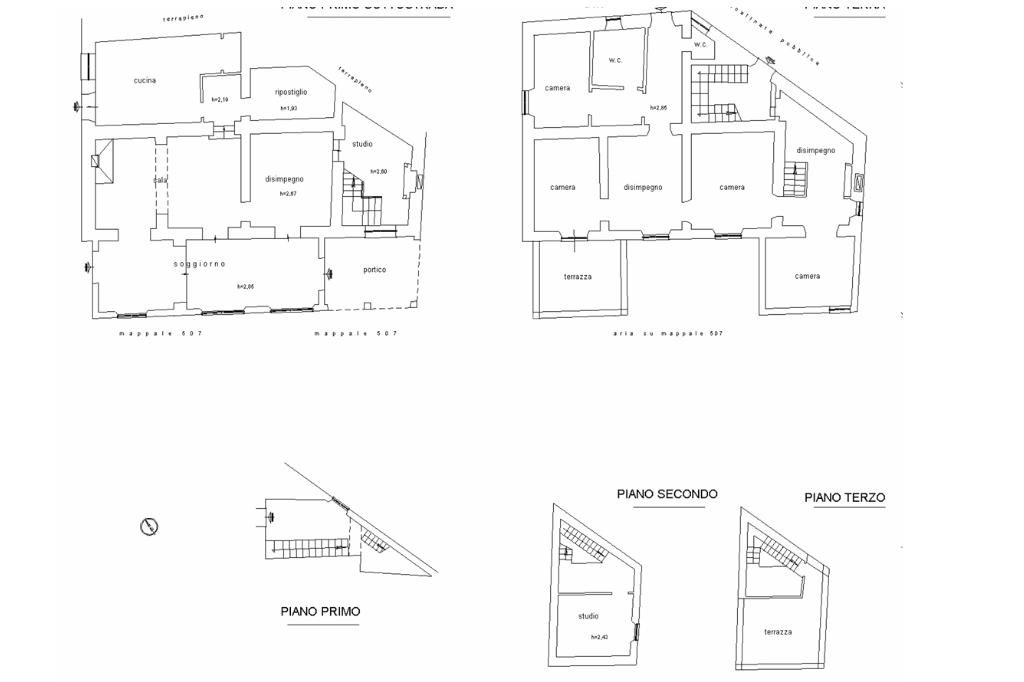
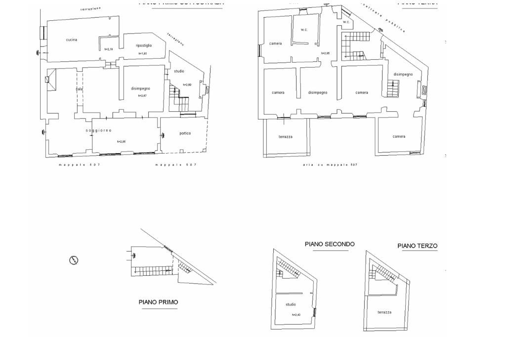
La proprietà comprende una villa di 286 mq catastali e due unità non abitative, offrendo interessanti possibilità di recupero e personalizzazione.

Contesto riservato e tranquillo, ideale per chi cerca privacy e un progetto da valorizzare.

Per maggiori info contattateci.

Mostra tutto

Nelle vicinanze

Trasporto pubblico Trasporto pubblico
Trasporto pubblico
100 m
Direzione Sarzana Ss62 Isola
Direzione Sarzana Ss62 Isola
2,9 Km
Mostra tutto

Caratteristiche

Rif.:
61199794
Piano:
1 di 1 (Piano su più livelli)
Posti auto:
2
Balconi:
1
Terrazzi:
1
Camere da letto:
4
Mostra tutto
Prezzo Prezzo
€ 90.000
Rata mutuo Rata mutuo
€ 427 / mese
Spese annue Spese annue
€ 0
Proponi il tuo prezzoProponi il tuo prezzo

Altre caratteristiche

Descrizione dei locali
Altri Locali cantina

Classe Energetica

G
G
G
G
G
G
G
G
G
EP globale non rinnovabile:
200.00 kW h/m² anno
EP globale rinnovabile:
200.00 kW h/m² anno
EP invernale del fabbricato:
EP estiva del fabbricato:
Anno di costruzione:
1940
Riscaldamento:
Assente

Ti interessa visionare l'immobile?

Fissa un appuntamento  Fissa un appuntamento

Richiedi informazioni

Clicca su Leggi per aprire l'informativa
* Questi campi sono obbligatori

Calcola il tuo mutuo

Semplice e senza impegno
Anticipo

( % )
Mutuo

( % )

pochi semplici passi

inserisci i tuoi dati
Questionario completato
Grazie per aver richiesto un appuntamento senza impegno con un nostro Consulente del Credito e Assicurativo.

Hai inserito correttamente tutti i dati necessari e a breve riceverai una e-mail con un link da convalidare per inviare i tuoi dati.
Affiliato
Studio Gpt Srl
Via Romana, 20 19020 Bolano (SP)

Il nostro staff


  • Sara Giovanna Gallina
    Coordinatrice

  • Daniele Toscano
    Responsabile

  • Francesco Giacopello
    Affiliato
Via Romana, 20 19020 Bolano (SP)
Zona: Ceparana - Bolano - Follo
Mostra su mappa
Affiliato
Studio Gpt Srl
Via Romana, 20 19020 Bolano (SP)

2026 Tecnocasa Franchising S.p.A. - P. IVA 08365160152 - Via Monte Bianco 60/A 20089 Rozzano (MI). Ogni agenzia ha un proprio titolare ed è autonoma. Privacy policy | Policy utilizzo | Cookie policy