Trilocale in affitto

Podenzana, Via Chiesa - Montedivalli-Chiesa
€ 390 / mese
3 locali 3 locali
65 Mq 65 Mq
1 bagno 1 bagno

Trilocale in affitto

Podenzana, Via Chiesa - Montedivalli-Chiesa

Descrizione annuncio

MONTEDIVALLI - APPARTAMENTO DI 3 VANI IN AFFITTO.

Si richiedono refernze e dipendenti statali

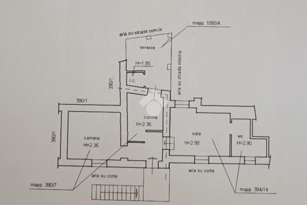
Proponiamo in affitto un appartamento di 3 vani situato a montedivalli. Direttamente dall'ingresso si accede al disimpegno che porta ai locali; salotto con camino, uno spazio accogliente e caldo, dalla quale accediamo al bagno finestrato, dotato di vasca e ripostiglio con botola apposita. La cucina luminosa con cucinotto porta al terrazzo di proprietà, spazioso e con vista.

Il riscaldamento è autonomo a radiatori e controtermostato per regolazione della temperatura interna.

Non sono previste spese condominiali.

La richiesta è di 400€ mensili con deposito cauzionale di 3 mensilità.

Disponibilità immediata.

Mostra tutto

Nelle vicinanze

Trasporto pubblico Trasporto pubblico
Trasporto pubblico
2,3 Km
Farmacia Farmacia
Farmacia
1,9 Km
Mostra tutto

Caratteristiche

Rif.:
61119873
Piano:
1 di 2 (Piano alto)
Terrazzi:
1
Camere da letto:
1
Arredamento:
Parziale
Condizionamento:
Assente
Mostra tutto
Prezzo Prezzo
€ 390 / mese
Spese annue Spese annue
€ 0

Classe Energetica

G
G
G
G
G
G
G
G
G
EP invernale del fabbricato:
EP estiva del fabbricato:
Anno di costruzione:
2000
Riscaldamento:
Autonomo
Tipo impianto:
A radiatori
Tipo alimentazione:
Metano

Ti interessa visionare l'immobile?

Fissa un appuntamento  Fissa un appuntamento

Richiedi informazioni

Clicca su Leggi per aprire l'informativa
* Questi campi sono obbligatori
Affiliato
Studio Gpt Srl
Via Romana, 20 19020 Bolano (SP)

Il nostro staff


  • Sara Giovanna Gallina
    Coordinatrice

  • Daniele Toscano
    Responsabile

  • Francesco Giacopello
    Affiliato
Via Romana, 20 19020 Bolano (SP)
Zona: Ceparana - Bolano - Follo
Mostra su mappa
Affiliato
Studio Gpt Srl
Via Romana, 20 19020 Bolano (SP)

2026 Tecnocasa Franchising S.p.A. - P. IVA 08365160152 - Via Monte Bianco 60/A 20089 Rozzano (MI). Ogni agenzia ha un proprio titolare ed è autonoma. Privacy policy | Policy utilizzo | Cookie policy