Casa semindipendente in vendita

Podenzana, Via Fogana - Montedivalli-Chiesa
€ 69.000
4 locali 4 locali
92 Mq 92 Mq
1 bagno 1 bagno

Casa semindipendente in vendita

Podenzana, Via Fogana - Montedivalli-Chiesa

Descrizione annuncio

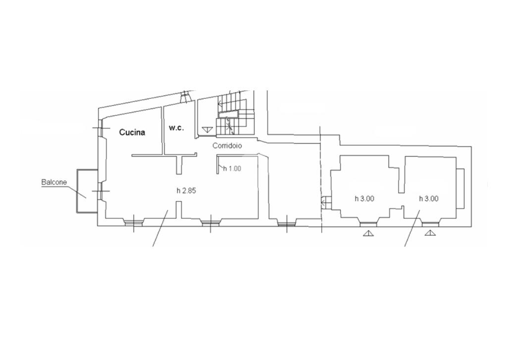
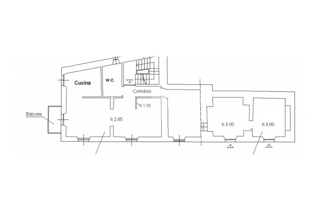
Montedivalli - Proponiamo in vendita, nel contesto collinare e panoramico di Montedivalli, appartamento di 5 locali, situato in piccola palazzina recentemente riqualificata, senza spese condominiali.

L’ingresso si apre su un corridoio che distribuisce gli ambienti: bagno finestrato con doccia, soggiorno con camino, sala da pranzo e cucinotto con accesso al balcone.

La zona notte comprende una camera matrimoniale; da qui si accede a due ulteriori stanze allo stato grezzo, ideali per essere personalizzate in base alle proprie esigenze.

Completano la proprietà una cantina finestrata di circa 17 mq, con ingresso indipendente al piano terra, e un terreno adiacente di circa 650 mq.

La facciata dello stabile è stata recentemente ristrutturata.

Soluzione ideale per chi desidera indipendenza, assenza di spese condominiali e la possibilità di valorizzare gli spazi accessori, anche in ottica abitativa o professionale.

Mostra tutto

Nelle vicinanze

Trasporto pubblico Trasporto pubblico
Trasporto pubblico
2,6 Km
Farmacia Farmacia
Farmacia
2,1 Km
Mostra tutto

Caratteristiche

Rif.:
61204375
Piano:
1 di 2 (Piano medio)
Posti auto:
1
Balconi:
1
Camere da letto:
2
Arredamento:
Completo
Mostra tutto
Prezzo Prezzo
€ 69.000
Rata mutuo Rata mutuo
€ 327 / mese
Spese annue Spese annue
€ 0
Proponi il tuo prezzoProponi il tuo prezzo

Classe Energetica

G
G
G
G
G
G
G
G
G
EP globale non rinnovabile:
274.25 kW h/m² anno
EP globale rinnovabile:
274.25 kW h/m² anno
EP invernale del fabbricato:
EP estiva del fabbricato:
Anno di costruzione:
1900
Riscaldamento:
Autonomo
Tipo impianto:
A radiatori
Tipo alimentazione:
GPL

Ti interessa visionare l'immobile?

Fissa un appuntamento  Fissa un appuntamento

Richiedi informazioni

Clicca su Leggi per aprire l'informativa
* Questi campi sono obbligatori

Calcola il tuo mutuo

Semplice e senza impegno
Anticipo

( % )
Mutuo

( % )

pochi semplici passi

inserisci i tuoi dati
Questionario completato
Grazie per aver richiesto un appuntamento senza impegno con un nostro Consulente del Credito e Assicurativo.

Hai inserito correttamente tutti i dati necessari e a breve riceverai una e-mail con un link da convalidare per inviare i tuoi dati.
Affiliato
Studio Gpt Srl
Via Romana, 20 19020 Bolano (SP)

Il nostro staff


  • Sara Giovanna Gallina
    Coordinatrice

  • Daniele Toscano
    Responsabile

  • Francesco Giacopello
    Affiliato
Via Romana, 20 19020 Bolano (SP)
Zona: Ceparana - Bolano - Follo
Mostra su mappa
Affiliato
Studio Gpt Srl
Via Romana, 20 19020 Bolano (SP)

2026 Tecnocasa Franchising S.p.A. - P. IVA 08365160152 - Via Monte Bianco 60/A 20089 Rozzano (MI). Ogni agenzia ha un proprio titolare ed è autonoma. Privacy policy | Policy utilizzo | Cookie policy